ZS-Sandwich
ZS-Sandwich -001
| État de disponibilité: | |
|---|---|
| Quantité: | |
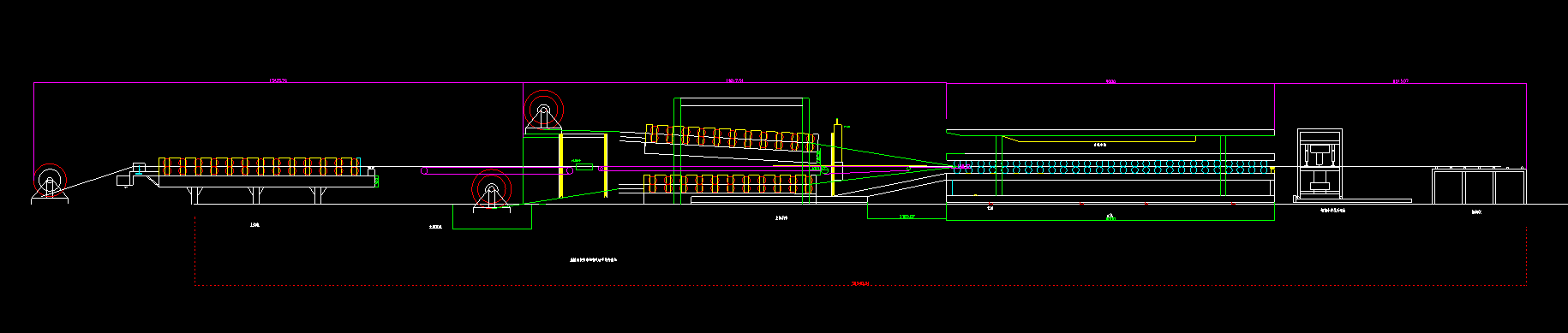
Machine de formage de rouleaux de panneaux sandwich
La conception du panneau EPS/Laine de roche/Z Lock peut être choisie, nous pouvons personnaliser la machine de formage de rouleaux de panneaux sandwich.Il s'agit d'une ligne de travail complète de Decoiler --- Machine de formage de rouleaux de tôle de toit --- Deux dérouleurs --- Machines de formage de rouleaux Z Lock --- Système d'alimentation EPS ou laine de roche --- Système de colle --- Profilage de rouleaux de panneaux sandwich - --Système de coupe---Table.
Taille du produit :
Produit par cette ligne | Acier + laine de roche |
Milieu matériel | Panneau isolé en bandes de laine de roche |
Épaisseur 50~200mm | |
Métal feuilles | PPGI , GI, AL... (Note : si vous faites de l'acier inoxydable, veuillez le dire, le matériau du rouleau est différent) |
Épaisseur 0,3 ~ 0,6 mm |
Conception du toit :
Largeur de bobine du plat supérieur : 1250 mm ; Largeur de bobine de plaque inférieure : 1050 mm.
Conception pour mur :
Largeur de bobine du plat supérieur : 1250 mm ; Largeur de bobine de plaque inférieure : 1050 mm.
Ligne de production de panneaux sandwich EPS et laine de roche | |||
NON. | Nom | QTÉ (Ensemble) | Remarque |
Partie 1 | Machine de formage de rouleaux de tôles de toit et de panneaux muraux | 2 | Formant |
Partie 2 | Alimentation Dispositif de bandes de laine de roche (alimentation manuelle) | 1 | |
Partie 3 Sandwich Système de stratification de panneaux | Plus long Presse principale | 1 | 9,0 m, 50 stations montantes et descendantes (25 couples) |
Plus gros Pressage de rouleaux en caoutchouc Entier Couche de rouleau en caoutchouc plus épaisse | 1 | Rouleau diamètre: 180 millimètres Épaisseur de couche de caoutchouc composite de rouleau entier : 13 mm Dureté de couche de caoutchouc composite : 50 ~ 60 | |
Niveleur pour l'épaisseur | 1 | ||
Colle système | 1 | 4 pompes, 2 moteurs, 2 inverseurs, 6 tubes de chute de colle | |
Électrique Système de contrôle | 1 | ||
Partie 4 | Sandwich machine de découpe de longueur de panneau avec couvercle | 1 | coupe à la scie à disque |
Utilisations :
La construction de bâtiments avec des panneaux sandwich est devenue très courante dans les constructions.Et le développement des panneaux sandwich est également progressé par une grande variété d’organisations.Il devient de plus en plus difficile de s'en tenir à l'usage habituel actuel.
1.
Machine de formage de rouleaux de panneaux sandwich
La conception du panneau EPS/Laine de roche/Z Lock peut être choisie, nous pouvons personnaliser la machine de formage de rouleaux de panneaux sandwich.Il s'agit d'une ligne de travail complète de Decoiler --- Machine de formage de rouleaux de tôle de toit --- Deux dérouleurs --- Machines de formage de rouleaux Z Lock --- Système d'alimentation EPS ou laine de roche --- Système de colle --- Profilage de rouleaux de panneaux sandwich - --Système de coupe---Table.
Taille du produit :
Produit par cette ligne | Acier + laine de roche |
Milieu matériel | Panneau isolé en bandes de laine de roche |
Épaisseur 50~200mm | |
Métal feuilles | PPGI , GI, AL... (Note : si vous faites de l'acier inoxydable, veuillez le dire, le matériau du rouleau est différent) |
Épaisseur 0,3 ~ 0,6 mm |
Conception du toit :
Largeur de bobine du plat supérieur : 1250 mm ; Largeur de bobine de plaque inférieure : 1050 mm.
Conception pour mur :
Largeur de bobine du plat supérieur : 1250 mm ; Largeur de bobine de plaque inférieure : 1050 mm.
Ligne de production de panneaux sandwich EPS et laine de roche | |||
NON. | Nom | QTÉ (Ensemble) | Remarque |
Partie 1 | Machine de formage de rouleaux de tôles de toit et de panneaux muraux | 2 | Formant |
Partie 2 | Alimentation Dispositif de bandes de laine de roche (alimentation manuelle) | 1 | |
Partie 3 Sandwich Système de stratification de panneaux | Plus long Presse principale | 1 | 9,0 m, 50 stations montantes et descendantes (25 couples) |
Plus gros Pressage de rouleaux en caoutchouc Entier Couche de rouleau en caoutchouc plus épaisse | 1 | Rouleau diamètre: 180 millimètres Épaisseur de couche de caoutchouc composite de rouleau entier : 13 mm Dureté de couche de caoutchouc composite : 50 ~ 60 | |
Niveleur pour l'épaisseur | 1 | ||
Colle système | 1 | 4 pompes, 2 moteurs, 2 inverseurs, 6 tubes de chute de colle | |
Électrique Système de contrôle | 1 | ||
Partie 4 | Sandwich machine de découpe de longueur de panneau avec couvercle | 1 | coupe à la scie à disque |
Utilisations :
La construction de bâtiments avec des panneaux sandwich est devenue très courante dans les constructions.Et le développement des panneaux sandwich est également progressé par une grande variété d’organisations.Il devient de plus en plus difficile de s'en tenir à l'usage habituel actuel.
1.
